Celková cena: 1990000,- Kč
Lokalita: Kochánky
2 Chaty, dřevěná a zděná, za jednu cenu, nebo s možností výměny za byt ve...| Pronájem novostavby bytu 2+kk 42m2 + lodžie 9 m2, Hodějovského, Benešov. | 5 | Benešov | více zde |
| KÓD: | PAVE5873 |
| Celková cena | 25 000 Kč |
| Poznámka k ceně | + poplatky a odměna pro RK |
| Druh objektu | smíšená |
| Vlastnictví | osobní |
| číslo podlaží | 4 |
| počet podlaží | 6 |
| Parkovací stání | ano |
| Celková podlahová plocha | 73 |
| odpad | kanalizace |
| Energetická náročnost | B - Velmi úsporná |
| topení | ústřední plynové |
| sklep m2 | 3 |
| k nastěhování | 1.2.2026 |
| bezbarierový byt | ano |
| neprůchozí pokoje | ano |
| občanská vybavenost | wellnes centrum |
| dětské hřiště | |
| zdravotnická zařízení | |
| škola | |
| školka | |
| kompletní síť obchodů | |
| supermarket | |
| pošta | |
| výtah | ano |
| Dispozice bytu | 3kk |
| Parkování | parkovací stání |
| stav bytu | novostavba |
| Stav objektu | novostavba |
| doprava | autobus |
| vlak | |
| lodžie m2 | 5 |
| voda | rozvod studené a teplé vody |
| umístění objektu | centrum obce |
| počet podzem. podlaží | 2 |
KONTAKT MAKLÉŘE:
Kontaktujte našeho makléře a sjednejte si prohlídku.
Andrea Venerová
602 602 677
venerova@havereality.cz
Luxusní bydlení v dosahu centra města.
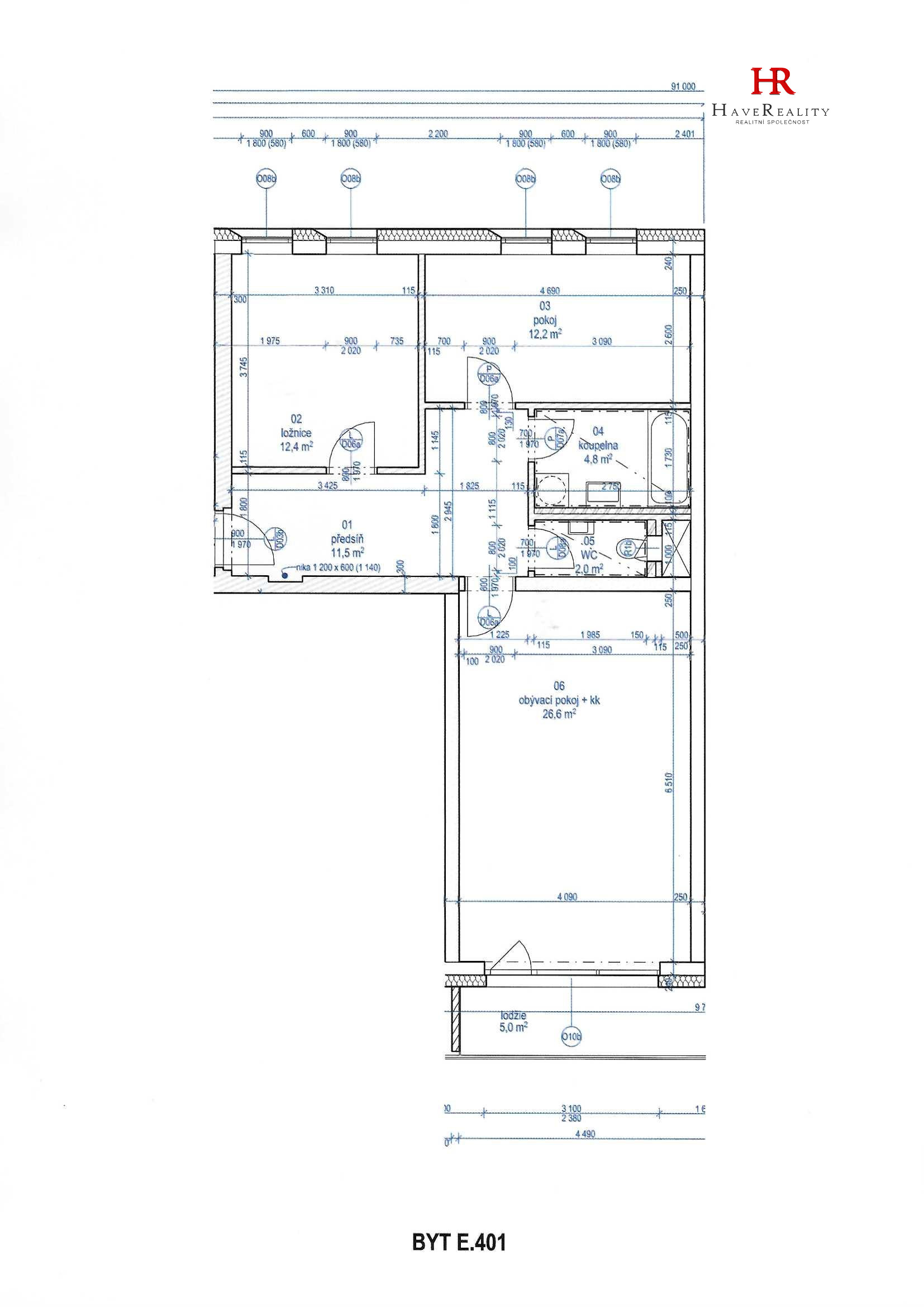
Dovolujeme si Vám nabídnout do pronájmu s platností od 02/2026 krásný byt 3+kk, o velikosti 73,1m2 + lodžie 5,1 m2 v novostavbě dokončovaného bytového komplexu 102. pluku v Benešově. Výstavba nového bytového domu probíhala v letech 2025-2026 a splňuje nejvyšší nároky a standardy bydlení. Byt je dispozičně členěn na: vstupní předsíň 12,1m2, ložnici 12,4m2, pokoj 13 m2, samostatné WC 1,7m2, koupelnu s vanou 4,7 m2 a obývací pokoj s kuchyňským koutem 29,2 m2 se vstupem na lodžii 5,1 m2. Dům je zateplený, nízkonákladový, splňuje PENB třídy „B“ a má výtah. V bytě je naistalována nová kuchyňská linka zn. SYKORA se spotřebiči (pečící trouba, varná sklokeramická deska, lednice s mrazákem a digestoř s odtahem) + příprava na myčku nádobí. Vytápění v domě a ohřev teplé vody zajistí centrální plynový kotel. V bytě jsou rozmístěny radiátory a v koupelně topný žebřík. Každá jednotka má svůj vlastní elektroměr, měřiče spotřeby studené i teplé vody a spotřeby tepla. Na podlaze je plovoucí podlaha v dezénu dub/buk a keramická dlažba. Okna jsou plastová, zvenčí šedá, uvnitř bílá, s izolačními skly. Vstupní dveře každého bytu jsou protipožární, k dispozici je domácí telefon s vnější kamerou, mikrofonem a reproduktorem. V suterénu domu se nachází parkovací stání pro vůz (za poplatek 1.500,- Kč), sklepní kóje a společné prostory v domě. Požadované měsíční nájemné za byt činí 25.000,- Kč + záloha na spotřebu médií cca 4.000,- Kč včetně spotřeby el. energie. Parkování v suterénu domu za poplatek 1.500,- Kč měsíčně za 1 parkovací místo. Jistota (dříve kauce) činí 45.000,- Kč a je vratná po řádném ukončení nájemního vztahu. Provize pro RK činí 1měsíční nájemné. Nabídka je určena pro zájemce bez domácích mazlíčků. Upřednostňujeme dlouhodobý pronájem. V Benešově je veškerá občanská vybavenost v místě a dobré dopravní spojení do Prahy a Českých Budějovic. Prohlídky objektu jsou možné po dohodě. V případě Vašich dotazů nás neváhejte kontaktovat na uvedeném telefonním čísle.
Tisk