Celková cena: 10200,- Kč
Lokalita: Benešov
Nabízíme do pronájmu prostory k podnikání v centru města.| Pronájem novostavby bytu 1+kk, 41 m2 s terasou 12 m2, + vlastním parkovacím stání, Benešov. | 3 | Benešov | více zde |
| KÓD: | PAVE5936 |
| Celková cena | 23 000 Kč |
| Poznámka k ceně | + poplatky a odměna pro RK |
| Druh objektu | smíšená |
| Vlastnictví | osobní |
| číslo podlaží | 6 |
| počet podlaží | 6 |
| Garáž | ano |
| Celková podlahová plocha | 58 |
| odpad | kanalizace |
| Energetická náročnost | B - Velmi úsporná |
| Telekomunikace | kabelový internet |
| topení | ústřední plynové |
| sklep m2 | 2 |
| k nastěhování | 1.4.2026 |
| bezbarierový byt | ano |
| neprůchozí pokoje | ano |
| občanská vybavenost | wellnes centrum |
| dětské hřiště | |
| zdravotnická zařízení | |
| škola | |
| školka | |
| kompletní síť obchodů | |
| supermarket | |
| pošta | |
| výtah | ano |
| Dispozice bytu | 2kk |
| Parkování | garáž |
| stav bytu | novostavba |
| Stav objektu | novostavba |
| doprava | autobus |
| vlak | |
| MHD | |
| balkon m2 | 3 |
| voda | rozvod studené a teplé vody |
| umístění objektu | centrum obce |
| počet podzem. podlaží | 2 |
KONTAKT MAKLÉŘE:
Kontaktujte našeho makléře a sjednejte si prohlídku.
Andrea Venerová
602 602 677
venerova@havereality.cz
Luxusní bydlení v dosahu centra města.
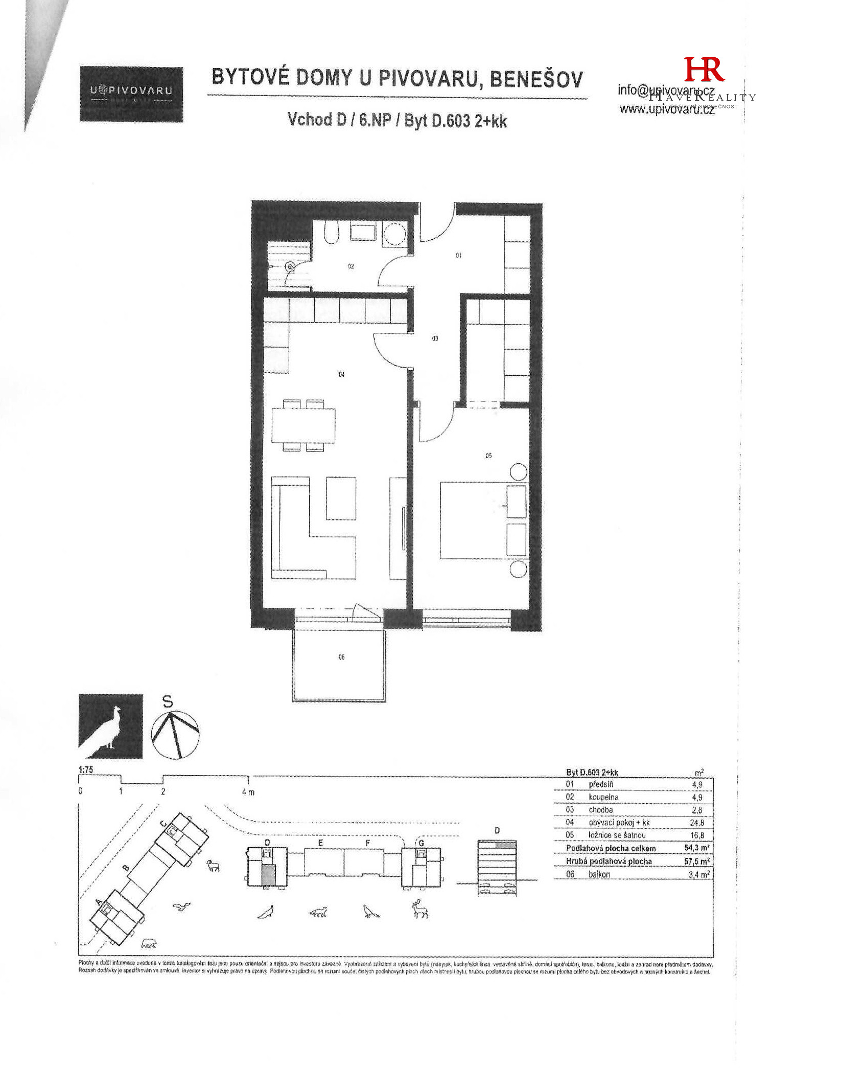
Dovolujeme si Vám nabídnout do pronájmu s platností od dubna 2026 krásný byt 2+kk v novostavbě, o velikosti 58,6 m2 s balkonem 3,4 m2 umístěný v 6. NP dokončeného bytového komplexu v Benešově. Výstavba bytového domu probíhala v letech 2025-2026 a splňuje nejvyšší nároky a standardy bydlení. Byt je dispozičně členěn na: vstupní předsíň 4,9 m2, koupelnu s WC 4,9 m2, obývací pokoj 24,8 m2 s novou kuchyňskou linkou a vstupem na balkon 3,4 m2 a ložnici se šatnou 16,8 m2. Dům je zateplený, nízkonákladový, splňuje PENB třídy „B“ a má výtah. V bytě se nachází moderní kuchyňská linka s vestavnými spotřebiči: (pečící trouba, myčka nádobí, indukční varná deska, mikrovlnná trouba, lednice s mrazákem a digestoř). Vytápění v domě a ohřev teplé vody zajistí centrální plynový kotel. V bytě jsou rozmístěny radiátory a v koupelně topný žebřík. Každá jednotka má svůj vlastní elektroměr, měřiče spotřeby studené i teplé vody a spotřeby tepla. Na podlaze je plovoucí podlaha v dezénu přírodního dřeva a v koupelně keramická dlažba a prostorný sprchový kout. Okna jsou plastová, zvenčí šedá, uvnitř bílá, s izolačními 3 skly. V oknech budou instalovány žaluzie. Vstupní dveře do bytu jsou protipožární, k dispozici je domácí telefon. V suterénu domu se nachází parkovací stání pro vůz v garáži. Sklepní kóje patřící k bytu je umístěna ve 2.NP a má 2,3 m2. Požadované měsíční nájemné za byt včetně parkovacího stání v garáži a sklepa činí 23.000,- Kč + záloha na spotřebu médií cca 3.762,- Kč. Spotřebu el. energie v bytě si nájemce přihlásí na sebe u dodavatele. Jistota (dříve „kauce“) činí 45.000,- Kč a je vratná po řádném ukončení nájemního vztahu. Provize pro RK činí 1měsíční nájemné. Nabídka je určena pro nekuřáky bez domácích mazlíčků. Upřednostňujeme dlouhodobý pronájem. V Benešově je veškerá občanská vybavenost v místě a dobré dopravní spojení do Prahy a Českých Budějovic. Prohlídky objektu jsou možné kdykoli po dohodě. V případě Vašich dotazů nás neváhejte kontaktovat na uvedeném telefonním čísle.
Tisk